Prodaje se atraktivan plac površine 2500 m² u naselju Rogami, Podgorica, sa direktnim izlazom na rijeku Moraču i potpuno spreman za gradnju luksuzne vile.
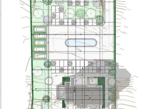
Plac posjeduje urbanističko-tehničke uslove, urađeni su idejni i glavni projekat, dobijena je sva potrebna saglasnost i plaćene su komunalije, što znači da je kupcu ostalo samo da prijavi početak gradnje.
Dovedeni su struja i voda. Urađen je pristupni put. Plac je nivelisan u tri kaskade čime je dodatno valorizovan prostor.
Južna orijentacija daje na ljepoti pogleda i dobru insolaciju. Otvoren, neometan pogled na rijeku i prirodu – na suprotnoj obali nema objekata. Sa njega se vide simboli grada: Vezirov most, Milenijum, brdo Gorica i naselje Zagorič. Centar Podgorice je na samo 10 minuta vožnje kolima. Arheološki lokalitet Duklja je na 2 minuta od lokacije.
Plac se nalazi uz kanjon rijeke Morače koji je dubok 12 m i širok 35 m.
Dakle, uz plac kupac dobija i projekat vile, dozvole i plaćene komunalije.
Razlog prodaje: Selidba vlasnika van Crne Gore.
Land lot
2500m²
N/A
N/A
Rogami
Rogami, Podgorica
210,000 €
84 € per m²


Price per m²: 84.00 €
Down payment 42,000 €
Note:
This calculation is for informational purposes only. Actual loan terms may vary depending on the bank, credit rating, and other factors. Please consult your bank for exact conditions.
Igor
Rogami
Rogami
Rogami
Rogami
Rogami
Rogami
Rogami
Rogami
Rogami
Igor A