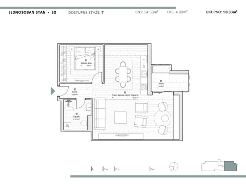
Ovaj jednosoban stan površine 59,33 m² nalazi se u novogradnji, na potkrovlju zgrade Eurozoxa, u ulici Boška Rašovića.
Stan je orjentisan u pravcu sjever-istok.
Karakteristike
Uz stan se može kupiti garaža sa ostavom po cijeni od 15,000.00Eur ili spoljašnje parking mjesto po cijeni od 5,000.00 Eur.
Planirani rok završetka radova: decembar 2024.
Stan
59m²
1
1
Kolašin
Kolašin, Crna Gora
117,400 €
1,990 € po m²
Agencija
Jutro Nekretnine

Cijena po m²: 1989.83 €
Učešće 23,480 €
Napomena:
Ova kalkulacija je informativna. Stvarni uslovi kredita mogu varirati u zavisnosti od banke, kreditnog rejtinga i drugih faktora. Konsultujte se sa bankom za tačne uslove.
Cijena ove nekretnine je 19.21% niža od prosječne cijene jednosobnog stana na lokaciji Kolašin
Prosječna cijena: 2462.87 €/m²
Ova nekretnina je 19.37% manja od prosječne veličine jednosobnog stana na lokaciji Kolašin
Prosječna veličina: 73 m²
Agencija (posrednik)
Jutro Nekretnine
Registarski broj
-
Lokacija
Crna Gora
Kolašin
Kvadratura
59m²
Struktura
1 Sobe
Tip nekretnine
Stan
Ove informacije su obavezne prema Zakonu o posredovanju u prometu i zakupu nepokretnosti Crne Gore. Svi posrednici moraju biti upisani u Registar posrednika koji vodi nadležno ministarstvo.
Kolašin
Moračko Trebaljevo
Centar
Centar
Centar
Breza
Centar
Breza
Kolašin