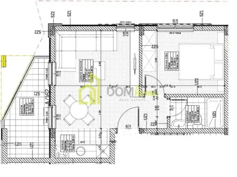
Za prodaju jednosoban stan 41m2, Kostanjica , Kotor. Zgrada u kojoj se stan nalazi je u izgradnji, a nalazi se na drugom spratu. Orijentisan je južno, sa prelijepim pogledom na more. Stan će biti useljiv do Decembra 2023. godine. Struktura stana: Ulazni hodnik, dnevni boravak, kuhinja, trpezarija, spavaća soba, toalet i terasa. Zgrada će imati video nadzor, obložena je kamenom i ima parking mjesto ispred zgrade.
Stan
41m²
1
N/A
Kostanjica
Kostanjica, Kotor
143,500 €
3,500 € po m²
Agencija
Dom Home

Cijena po m²: 3500.00 €
Učešće 28,700 €
Napomena:
Ova kalkulacija je informativna. Stvarni uslovi kredita mogu varirati u zavisnosti od banke, kreditnog rejtinga i drugih faktora. Konsultujte se sa bankom za tačne uslove.
Cijena ove nekretnine je 6.13% viša od prosječne cijene jednosobnog stana na lokaciji Kotor
Prosječna cijena: 3297.98 €/m²
Ova nekretnina je 18.46% manja od prosječne veličine jednosobnog stana na lokaciji Kotor
Prosječna veličina: 50 m²
Agencija (posrednik)
Dom Home
Registarski broj
-
Lokacija
Kotor
Kostanjica
Kvadratura
41m²
Struktura
1 Sobe
Tip nekretnine
Stan
Ove informacije su obavezne prema Zakonu o posredovanju u prometu i zakupu nepokretnosti Crne Gore. Svi posrednici moraju biti upisani u Registar posrednika koji vodi nadležno ministarstvo.
Kostanjica
Kostanjica
Kostanjica
Kostanjica
Kostanjica
Kostanjica
Kostanjica
Kostanjica
Kostanjica
Kostanjica