Prodaje se jednosoban stan površine 48,41m2 na Zabjelu.
Stan se nalazi na prizemlju zgrade koja je u izgradnji.
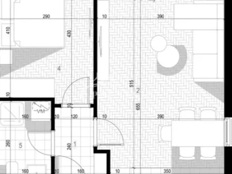
Struktura:ulazni hodnik,dnevni boravak sa kuhinjom i trpezarijom,spavaća soba,kupatilo i terasa.
Kupovina direktno od investitora.
Rok završetka radova predvidjen za April 2025.
Nalazi se na odličnoj lokaciji, u blizini se nalaze marketi, restorani,sportski tereni, dječije igralište, vrtić, osnovne škole, Tržni centar Big Fashion,Klinički centar i ostali sadržaji neophodni za svakodnevni život
.-1550€/m2
Cijena: 74 400€
+382 67 090-210
Stan
48m²
1
1
Zabjelo
Zabjelo, Podgorica
1,550 €
32 € po m²
Agencija
Prestige Real Estate

Cijena po m²: 32.29 €
Učešće 310 €
Napomena:
Ova kalkulacija je informativna. Stvarni uslovi kredita mogu varirati u zavisnosti od banke, kreditnog rejtinga i drugih faktora. Konsultujte se sa bankom za tačne uslove.
Cijena ove nekretnine je 98.52% niža od prosječne cijene jednosobnog stana na lokaciji Zabjelo
Prosječna cijena: 2182.05 €/m²
Ova nekretnina je 9.16% veća od prosječne veličine jednosobnog stana na lokaciji Zabjelo
Prosječna veličina: 44 m²
Agencija (posrednik)
Prestige Real Estate
Registarski broj
-
Lokacija
Podgorica
Zabjelo
Kvadratura
48m²
Struktura
1 Sobe
Tip nekretnine
Stan
Ove informacije su obavezne prema Zakonu o posredovanju u prometu i zakupu nepokretnosti Crne Gore. Svi posrednici moraju biti upisani u Registar posrednika koji vodi nadležno ministarstvo.
Zabjelo
Zabjelo
Zabjelo
Zabjelo
Zabjelo
Zabjelo
Zabjelo
Zabjelo
Zabjelo
Zabjelo