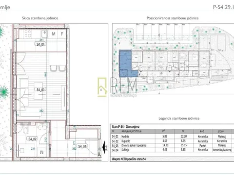
Stan
29m²
0
N/A
Momišići
Momišići, Podgorica
2,400 €
83 € po m²
Agencija
REMontenegro

Cijena po m²: 82.76 €
Učešće 480 €
Napomena:
Ova kalkulacija je informativna. Stvarni uslovi kredita mogu varirati u zavisnosti od banke, kreditnog rejtinga i drugih faktora. Konsultujte se sa bankom za tačne uslove.
Cijena ove nekretnine je 95.81% niža od prosječne cijene garsonjere stana na lokaciji Momišići
Prosječna cijena: 1974.38 €/m²
Ova nekretnina je 13.31% manja od prosječne veličine garsonjere stana na lokaciji Momišići
Prosječna veličina: 33 m²
Agencija (posrednik)
REMontenegro
Registarski broj
-
Lokacija
Podgorica
Momišići
Kvadratura
29m²
Struktura
N/A
Tip nekretnine
Stan
Ove informacije su obavezne prema Zakonu o posredovanju u prometu i zakupu nepokretnosti Crne Gore. Svi posrednici moraju biti upisani u Registar posrednika koji vodi nadležno ministarstvo.
Momišići
Momišići
Momišići
Momišići
Momišići
Momišići
Momišići
Momišići
Momišići
Momišići