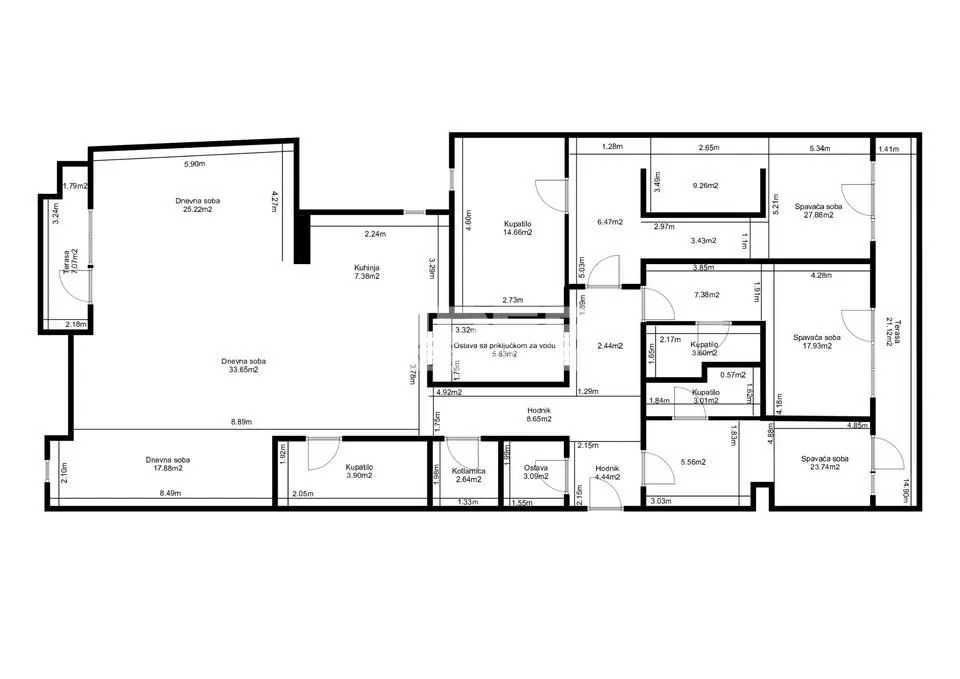
Apartment
261m²
4
1
Vračar Hram
Vračar Hram, Vračar Sve Podlokacije
1,305.000 €
5,000 € per m²
Agency
Lider Nekretnine

Price per m²: 5000.00 €
Down payment 261,000 €
Note:
This calculation is for informational purposes only. Actual loan terms may vary depending on the bank, credit rating, and other factors. Please consult your bank for exact conditions.
This property's price is 4.23% higher than the average price of a four bedroom apartment in Vračar Hram
Average price: 4797.06 €/m²
This property is 63.36% larger then the average size of a four bedroom apartment in Vračar Hram
Average size: 160 m²
Agency (intermediary)
Lider Nekretnine
Registration number
992
Location
Vračar Sve Podlokacije
Vračar Hram
Area
261m²
Structure
4 Rooms
Property Type
Apartment
This information is mandatory under the Law on Mediation in the Sale and Lease of Real Estate of Montenegro. All intermediaries must be registered in the Register of Intermediaries maintained by the competent ministry.
Vračar Hram
Vračar Hram
Vračar Hram
Vračar Hram
Vračar Hram
Vračar Hram
Vračar Hram
Vračar Hram
Vračar Hram
Vračar Hram