Manja, luksuzna zgrada u izgradnji, koja se nalazi na mirnoj lokaciji, u blizini Partizanovog stadiona, a nedaleko od centra grada. Građena od finijih i kvalitetnijih materijala, atraktivnog izgleda, ova zgrada će predstavljati odličan izbor nekretnine, bilo za život ili za investiciju. Grejanje i hlađenje će biti obezbeđeno pomoću najekonomičnijeg načina grejanja - sistemom toplotnih pumpi. U okolini zgrade ima dosta slobodnog parking prostora. Postoji mogućnost kupovine garažnog mesta, po sistemu klackalica, uz doplatu. U izraženu cenu nije uračunat PDV. Vlasnik nekretnine je investitor, te postoji mogućnost kupovine stana na kredit, kao i povraćaja PDV-a za kupce koji ispunjavaju uslove za to.
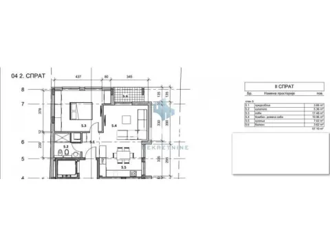
Izdvajamo dvosobne stanove, površine 57.10m2, koji se nalaze na prvom i drugom spratu. Stan čine open space - dnevni boravak sa trpezarijom i kuhinjom, odvojena spavaća soba, kupatilo i terasa. Stan je odlične strukture prostorija i orijentacije i s tim u vezi, vrlo je adaptibilan - pregrađivanjem se lako može dobiti još jedna manja spavaća soba. Obe strukture stana prikazane su na tlocrtima, koji se nalaze u fotografijama oglasa.
Agencijska provizija iznosi 2% kupoprodajne cene
ID oglasa: 22249.Stan
57m²
2
N/A
Savski Venac
Savski Venac, Beograd
191,285 €
3,356 € po m²
Agencija
Eminent Nekretnine

Cena po m²: 3355.88 €
Učešće 38,257 €
Napomena:
Ova kalkulacija je informativna. Stvarni uslovi kredita mogu varirati u zavisnosti od banke, kreditnog rejtinga i drugih faktora. Konsultujte se sa bankom za tačne uslove.
Cena ove nekretnine je 32.35% niža od prosečne cene dvosobnog stana na lokaciji Savski Venac
Prosečna cena: 4960.75 €/m²
Ova nekretnina je 16.87% manja od prosečne veličine dvosobnog stana na lokaciji Savski Venac
Prosečna veličina: 69 m²
Agencija (posrednik)
Eminent Nekretnine
Registarski broj
-
Lokacija
Beograd
Savski Venac
Kvadratura
57m²
Struktura
2 Sobe
Tip nekretnine
Stan
Ove informacije su obavezne prema Zakonu o posredovanju u prometu i zakupu nepokretnosti Crne Gore. Svi posrednici moraju biti upisani u Registar posrednika koji vodi nadležno ministarstvo.
Savski Venac
Savski Venac
Savski Venac
Savski Venac
Savski Venac
Savski Venac
Savski Venac
Savski Venac
Savski Venac
Savski Venac