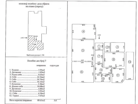
Stan
90m²
5
2
Obilićev Venac
Obilićev Venac, Beograd
330,000 €
3,667 € po m²
Agencija
Nekretnine Apartman

Cena po m²: 3666.67 €
Učešće 66,000 €
Napomena:
Ova kalkulacija je informativna. Stvarni uslovi kredita mogu varirati u zavisnosti od banke, kreditnog rejtinga i drugih faktora. Konsultujte se sa bankom za tačne uslove.
Agencija (posrednik)
Nekretnine Apartman
Registarski broj
-
Lokacija
Beograd
Obilićev Venac
Kvadratura
90m²
Struktura
5 Soba
Tip nekretnine
Stan
Ove informacije su obavezne prema Zakonu o posredovanju u prometu i zakupu nepokretnosti Crne Gore. Svi posrednici moraju biti upisani u Registar posrednika koji vodi nadležno ministarstvo.
Obilićev Venac
Obilićev Venac
Obilićev Venac
Obilićev Venac
Obilićev Venac
Obilićev Venac
Donji Dorćol
Savski Venac
Zemun Polje
Cvetanova Ćuprija