38,400 €
  • Prodaja, garsonjera, 24m², Centar, Jagodina - image 1
  • Prodaja, garsonjera, 24m², Centar, Jagodina - image 2
  • Prodaja, garsonjera, 24m², Centar, Jagodina - image 3
38,400 € (1,600 €/m²)
24 m²

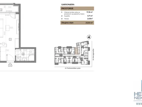
Prodaja, garsonjera, 24m², Centar, Jagodina

Centar, Jagodina Srbija

Opis nekretnine

Stanovi u izgradnji na par minuta od gradskog jezgra, lokacija koja u potpunosti odgovara modernom načinu života. Veoma blizu svih gradskih institucija, omogućava Vam da bez korišćenja vozila završavate sve Vaše obaveze. Sa druge strane udaljeni ste samo par minuta od Vivo šoping centra, Akva parka kao i parka Đurđevo brdo. A opet. lokacija koja je pomerena od gradske gužve, što će Vam pružiti mirna i tiha poslepodneva i večeri, kad treba odmoriti od svih dnevnih napora sa kojim se svi u današnje vreme susrećemo. Spoljni zidovi: - Zorka Šabac, klimablok - Stiropor 12cm - Demit Fasada - Dekorativni paneli u dezenu drveta Stolarija: Prozori Rehau Synego 80mm sa Maco okovom. Šestokomorni profili sa tri dihtung gume i tri stakla punjena argonom, sa aluminijumskim roletnama. Kretanje kroz zgradu: - 3 brza KLEEMANN lifta Zvučna izolacija plafona: - Završna podna obloga - Cementni estrih - Parna brana - Kamena vuna 5cm - AB masivna ploča 20cm, Knauf akusto vuna, Knauf Zvučna izolacija zidova: - Pregradni zid između dva stana: Akusto blok 20cm, Knauf akustok vuna 5cm, Knauf. Armirani beton, 20cm, Knauf akustok vuna 5cm, Knauf Grejanje i Hlađenje: - svaki stan ima zasebni gasni kotao - Nema skrivenih dodatnih troškova za grejanje - Moguće je izabrati podno ili radijatorsko grejanje - Svaki stan poseduje sopstveni klima uređaj Podovi: - TARKETT parket, opciono je moguće oblagati podove i keramikom. 064/8-/8-/8-222-441

Detalji o nekretnini

ID oglasa
482598
Objavljeno
19.10.2025
Tip nekretnine

Stan

Kvadratura

24m²

Sobe

0

Kupatila

N/A

Lokacija

Centar

Centar, Jagodina

Cena

38,400 €

1,600 € po m²

Kreditni kalkulator

Hipotekarna Banka

Cena po m²: 1600.00 €

10%50%

Učešće 7,680 €

1%8%
5 god35 god
Mjesečna rata
186 €

240 rata ukupno

Iznos kredita
30,720 €
Učešće
7,680 €
Ukupna kamata
13,958 €
Ukupno plaćanje
44,678 €

Napomena:

Ova kalkulacija je informativna. Stvarni uslovi kredita mogu varirati u zavisnosti od banke, kreditnog rejtinga i drugih faktora. Konsultujte se sa bankom za tačne uslove.

Prosečne cene stanova - Centar

Centar
Jagodina

Cena ove nekretnine je 9.63% viša od prosečne cene garsonjere stana na lokaciji Centar

Prosečna cena: 1459.52 €/m²

Ova nekretnina je 17.24% manja od prosečne veličine garsonjere stana na lokaciji Centar

Prosečna veličina: 29 m²

regulatorne informacije

Agencija (posrednik)

Heroldo Nekretnine

Registarski broj

-

Lokacija

Jagodina

Centar

Kvadratura

24m²

Struktura

N/A

Tip nekretnine

Stan

Ove informacije su obavezne prema Zakonu o posredovanju u prometu i zakupu nepokretnosti Crne Gore. Svi posrednici moraju biti upisani u Registar posrednika koji vodi nadležno ministarstvo.

HN

Heroldo Nekretnine

Slične nekretnine

Kuća in Centar

Prodaja, kuća, 82m², Centar, Jagodina

75,000 €

Centar

82
Prodaja, kuća, 82m², Centar, Jagodina
Poslovni prostor in Centar

Prodaja, poslovni prostor, 46m², Centar, Jagodina

60,000 €

Centar

1 soba 46
Prodaja, poslovni prostor, 46m², Centar, Jagodina
Stan in Centar

Prodaja, dvosoban stan, 61m², Centar, Jagodina

65,000 €

Centar

2 sobe 61
Prodaja, dvosoban stan, 61m², Centar, Jagodina
Stan in Centar

Prodaja, dvosoban stan, 39m², Centar, Jagodina

62,000 €

Centar

2 sobe 39
Prodaja, dvosoban stan, 39m², Centar, Jagodina
Stan in Centar

Prodaja, trosoban stan, 83m², Centar, Jagodina

89,000 €

Centar

3 sobe 83
Prodaja, trosoban stan, 83m², Centar, Jagodina
Stan in Centar

Prodaja, dvosoban stan, 59m², Centar, Jagodina

68,500 €

Centar

2 sobe 59
Prodaja, dvosoban stan, 59m², Centar, Jagodina
Stan in Centar

Prodaja, jednosoban stan, 37m², Centar, Jagodina

45,000 €

Centar

1 soba 37
Prodaja, jednosoban stan, 37m², Centar, Jagodina
Kuća in Centar

Prodaja, kuća, 118m², Centar, Jagodina

186,000 €

Centar

118
Prodaja, kuća, 118m², Centar, Jagodina
Stan in Centar

Prodaja, jednosoban stan, 43m², Centar, Jagodina

70,000 €

Centar

1 soba 43
Prodaja, jednosoban stan, 43m², Centar, Jagodina
Stan in Centar

Prodaja, dvosoban stan, 59m², Centar, Jagodina

80,595 €

Centar

2 sobe 59
Prodaja, dvosoban stan, 59m², Centar, Jagodina