176,500 €
176,500 € (1,898 €/m²)
93 m²
3 Soba

Prodaja, trosoban stan, 93m², Petrovaradin, Novi Sad

Petrovaradin, Novi Sad Srbija

Opis nekretnine

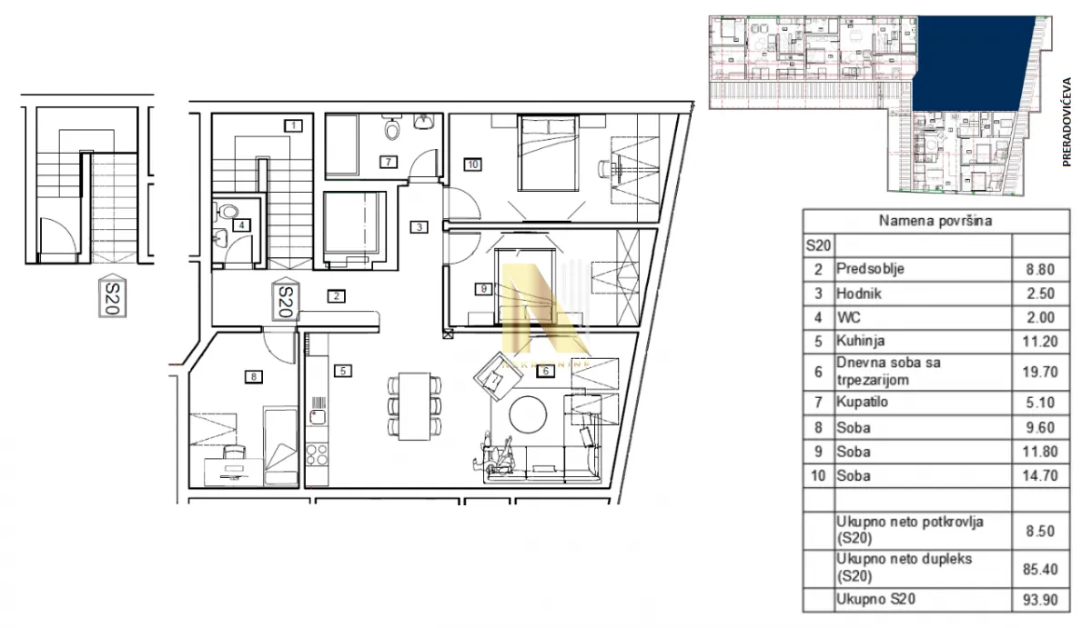
Jednoiposoban stan u izgradnji u Petrovaradinu. Opremljenost u stanovima: - PVC petokomrna stolarija - Sigurnosna ulazna vrata - Medijapan unutrašnja stolarija - Italijanska kermaika prve klase - Ugradni vodokotlić - Tarket - Lift - Grejanje na toplotne pumpe Stan se sastoji od: -Dnevne sobe sa uhinjom i trpezarijom -Tri spavaće sobe -Kupatila -Hodnika 1.850€/m2 sa PDV-om. Izražena cena je sa uračunatim PDV-om. Za kupce prve nekretnine moguć povrat PDV-a. Rok završetka 2026. godina Agencijska provizija od 3% nije uračunata u navedenu cenu. Za sve dodatne informacije, obratiti se na broj telefona 06*/****-*** ili 06*/****-*** Nikola Ljuboja, Alekse Šantića 64, N - NEKRETNINE, upisan u registar posrednika 1405.

Detalji o nekretnini

ID oglasa
415618
Objavljeno
25.06.2025
Tip nekretnine

Stan

Kvadratura

93m²

Sobe

3

Kupatila

N/A

Lokacija

Petrovaradin

Petrovaradin, Novi Sad

Cena

176,500 €

1,898 € po m²

Kreditni kalkulator

Cena po m²: 1897.85 €

10%50%

Učešće 35,300 €

1%8%
5 god35 god
Mjesečna rata
634 €

360 rata ukupno

Iznos kredita
141,200 €
Učešće
35,300 €
Ukupna kamata
87,058 €
Ukupno plaćanje
228,258 €

Napomena:

Ova kalkulacija je informativna. Stvarni uslovi kredita mogu varirati u zavisnosti od banke, kreditnog rejtinga i drugih faktora. Konsultujte se sa bankom za tačne uslove.

Prosečne cene trosobnih stanova - Petrovaradin

Petrovaradin
Novi Sad

Cena ove nekretnine je 18.23% niža od prosečne cene trosobnog stana na lokaciji Petrovaradin

Prosečna cena: 2321.03 €/m²

Ova nekretnina je 24.64% veća od prosečne veličine trosobnog stana na lokaciji Petrovaradin

Prosečna veličina: 75 m²

2,321 €
Prosečna godišnja cena
+8%
Trend cena (godišnje)
179
Dana na tržištu

regulatorne informacije

Agencija (posrednik)

N NEKRETNINE

Registarski broj

1405

Lokacija

Novi Sad

Petrovaradin

Kvadratura

93m²

Struktura

3 Sobe

Tip nekretnine

Stan

Ove informacije su obavezne prema Zakonu o posredovanju u prometu i zakupu nepokretnosti Crne Gore. Svi posrednici moraju biti upisani u Registar posrednika koji vodi nadležno ministarstvo.

N NEKRETNINE

Slične nekretnine

Stan in Alibegovac

Prodaja, dvosoban stan, 47m², Alibegovac, Petrovaradin

70,800 €

Alibegovac

2 sobe 47
Prodaja, dvosoban stan, 47m², Alibegovac, Petrovaradin
Stan in Alibegovac

Prodaja, jednosoban stan, 39m², Alibegovac, Petrovaradin

53,400 €

Alibegovac

1 soba 39
Prodaja, jednosoban stan, 39m², Alibegovac, Petrovaradin
Stan in Alibegovac

Prodaja, garsonjera, 29m², Alibegovac, Petrovaradin

42,200 €

Alibegovac

0 soba 29
Prodaja, garsonjera, 29m², Alibegovac, Petrovaradin
Stan in Alibegovac

Prodaja, dvosoban stan, 43m², Alibegovac, Petrovaradin

66,950 €

Alibegovac

2 sobe 43
Prodaja, dvosoban stan, 43m², Alibegovac, Petrovaradin
Stan in Alibegovac

Prodaja, dvosoban stan, 55m², Alibegovac, Petrovaradin

90,700 €

Alibegovac

2 sobe 55
Prodaja, dvosoban stan, 55m², Alibegovac, Petrovaradin
Stan in Alibegovac

Prodaja, garsonjera, 27m², Alibegovac, Petrovaradin

44,000 €

Alibegovac

0 soba 27
Prodaja, garsonjera, 27m², Alibegovac, Petrovaradin
Stan in Alibegovac

Prodaja, garsonjera, 21m², Alibegovac, Petrovaradin

33,300 €

Alibegovac

0 soba 21
Prodaja, garsonjera, 21m², Alibegovac, Petrovaradin
Stan in Alibegovac

Prodaja, garsonjera, 53m², Alibegovac, Petrovaradin

87,350 €

Alibegovac

0 soba 53
Prodaja, garsonjera, 53m², Alibegovac, Petrovaradin
Kuća in Sremska Kamenica

Prodaja, kuća, 139m², Sremska Kamenica, Petrovaradin

400,000 €

Sremska Kamenica

139
Prodaja, kuća, 139m², Sremska Kamenica, Petrovaradin
Stan in Sremska Kamenica

Prodaja, stan, 144m², Sremska Kamenica, Petrovaradin

331,200 €

Sremska Kamenica

5 soba 144
Prodaja, stan, 144m², Sremska Kamenica, Petrovaradin

N NEKRETNINE