220,800 €
220,800 € (1,648 €/m²)
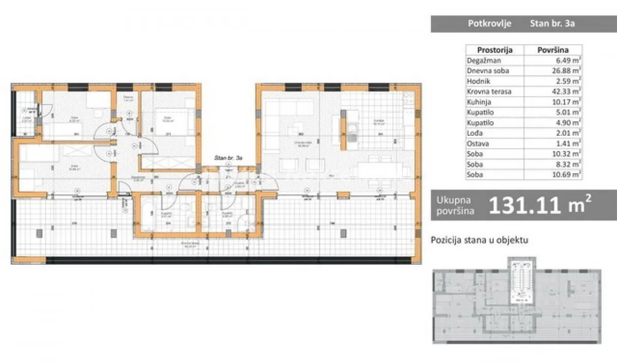
134 m²
4 Soba

Prodaja, četvorosoban stan, 134m², Veternik, Novi Sad Sve Podlokacije

Veternik, Novi Sad Sve Podlokacije Novi Sad Srbija

Opis nekretnine

*NAŠA PREPORUKA*...Prodajemo u Veterniku Novogradnja Useljiv Četvorosoban stan 134 m2 na POGODNOJ LOKACIJI...Stan se nalazi na Drugom spratu zgrade, ima Tri odvojene spavaće sobe i Fantastičnu Lepu Veliku Terasu,dvostrano je orijentisan,ističe se kvalitetna ugradnja,Italijanska keramika,Pvc stolarija...Grejanje je Podno...mogućnost povrata Pdv-a...Stan je Odmah Useljiv...Posebno izdvajamo blizinu škole,vrtića,tržnog centra i Gradskog prevoza...OBAVEZNO POGLEDAJTE...
više informacija na tel. 06*/****-***...Mišo Licenca broj 2465
ili na www.status-nekretnine.com
20782 VAŠ STATUS
(STATUS NEKRETNINE D.O.O UPISAN U REG. POSREDNIKA POD BR.182)

Detalji o nekretnini

ID oglasa
445876
Objavljeno
10.07.2025
Tip nekretnine

Stan

Kvadratura

134m²

Sobe

4

Kupatila

N/A

Lokacija

Veternik

Veternik, Novi Sad Sve Podlokacije

Cena

220,800 €

1,648 € po m²

Kreditni kalkulator

Hipotekarna Banka

Cena po m²: 1647.76 €

10%50%

Učešće 44,160 €

1%8%
5 god35 god
Mjesečna rata
1,070 €

240 rata ukupno

Iznos kredita
176,640 €
Učešće
44,160 €
Ukupna kamata
80,257 €
Ukupno plaćanje
256,897 €

Napomena:

Ova kalkulacija je informativna. Stvarni uslovi kredita mogu varirati u zavisnosti od banke, kreditnog rejtinga i drugih faktora. Konsultujte se sa bankom za tačne uslove.

Prosečne cene četvorosobnih stanova - Novi Sad Sve Podlokacije

Veternik
Novi Sad Sve Podlokacije

Cena ove nekretnine je 2.05% viša od prosečne cene četverosobnog stana na lokaciji Veternik

Prosečna cena: 1614.65 €/m²

Ova nekretnina je 39.29% veća od prosečne veličine četverosobnog stana na lokaciji Veternik

Prosečna veličina: 96 m²

1,615 €
Prosečna godišnja cena
+8%
Trend cena (godišnje)
208
Dana na tržištu

regulatorne informacije

Agencija (posrednik)

Status Nekretnine

Registarski broj

182

Lokacija

Novi Sad Sve Podlokacije

Veternik

Kvadratura

134m²

Struktura

4 Sobe

Tip nekretnine

Stan

Ove informacije su obavezne prema Zakonu o posredovanju u prometu i zakupu nepokretnosti Crne Gore. Svi posrednici moraju biti upisani u Registar posrednika koji vodi nadležno ministarstvo.

SN

Status Nekretnine

Slične nekretnine

Stan in Veternik

Prodaja, jednosoban stan, 34m², Veternik, Novi Sad Sve Podlokacije

61,800 €

Veternik

1 soba 34
Prodaja, jednosoban stan, 34m², Veternik, Novi Sad Sve Podlokacije
Stan in Veternik

Prodaja, jednosoban stan, 28m², Veternik, Novi Sad Sve Podlokacije

54,600 €

Veternik

1 soba 28
Prodaja, jednosoban stan, 28m², Veternik, Novi Sad Sve Podlokacije
Stan in Veternik

Prodaja, četvorosoban stan, 85m², Veternik, Novi Sad Sve Podlokacije

131,325 €

Veternik

4 sobe 85
Prodaja, četvorosoban stan, 85m², Veternik, Novi Sad Sve Podlokacije
Stan in Veternik

Prodaja, trosoban stan, 90m², Veternik, Novi Sad Sve Podlokacije

262,650 €

Veternik

3 sobe 90
Prodaja, trosoban stan, 90m², Veternik, Novi Sad Sve Podlokacije
Kuća in Veternik

Prodaja, kuća, 360m², Veternik, Novi Sad Sve Podlokacije

257,500 €

Veternik

5 soba 360
Prodaja, kuća, 360m², Veternik, Novi Sad Sve Podlokacije
Stan in Veternik

Prodaja, trosoban stan, 61m², Veternik, Novi Sad Sve Podlokacije

106,700 €

Veternik

3 sobe 61
Prodaja, trosoban stan, 61m², Veternik, Novi Sad Sve Podlokacije
Kuća in Veternik

Prodaja, kuća, 92m², Veternik, Novi Sad Sve Podlokacije

150,000 €

Veternik

3 sobe 92
Prodaja, kuća, 92m², Veternik, Novi Sad Sve Podlokacije
Kuća in Veternik

Prodaja, kuća, 201m², Veternik, Novi Sad Sve Podlokacije

257,500 €

Veternik

2 sobe 2 kupatila 201
Prodaja, kuća, 201m², Veternik, Novi Sad Sve Podlokacije
Stan in Veternik

Prodaja, četvorosoban stan, 89m², Veternik, Novi Sad Sve Podlokacije

161,000 €

Veternik

4 sobe 89
Prodaja, četvorosoban stan, 89m², Veternik, Novi Sad Sve Podlokacije
Zemljište in Veternik

Prodaja, plac, 600m², Veternik, Novi Sad Sve Podlokacije

220,000 €

Veternik

600
Prodaja, plac, 600m², Veternik, Novi Sad Sve Podlokacije