Stan
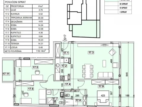
116m²
4
N/A
Zemun Gornji Grad
Zemun Gornji Grad, Zemun Sve Podlokacije
319,385 €
2,753 € po m²
Agencija
Agencija Codex

Cena po m²: 2753.32 €
Učešće 63,877 €
Napomena:
Ova kalkulacija je informativna. Stvarni uslovi kredita mogu varirati u zavisnosti od banke, kreditnog rejtinga i drugih faktora. Konsultujte se sa bankom za tačne uslove.
Cena ove nekretnine je 6.77% viša od prosečne cene četverosobnog stana na lokaciji Zemun Gornji Grad
Prosečna cena: 2578.82 €/m²
Ova nekretnina je 12% veća od prosečne veličine četverosobnog stana na lokaciji Zemun Gornji Grad
Prosečna veličina: 104 m²
Agencija (posrednik)
Agencija Codex
Registarski broj
-
Lokacija
Zemun Sve Podlokacije
Zemun Gornji Grad
Kvadratura
116m²
Struktura
4 Sobe
Tip nekretnine
Stan
Ove informacije su obavezne prema Zakonu o posredovanju u prometu i zakupu nepokretnosti Crne Gore. Svi posrednici moraju biti upisani u Registar posrednika koji vodi nadležno ministarstvo.
Zemun Gornji Grad
Zemun Gornji Grad
Zemun Gornji Grad
Zemun Gornji Grad
Zemun Gornji Grad
Zemun Gornji Grad
Zemun Gornji Grad
Zemun Gornji Grad
Zemun Gornji Grad
Zemun Gornji Grad